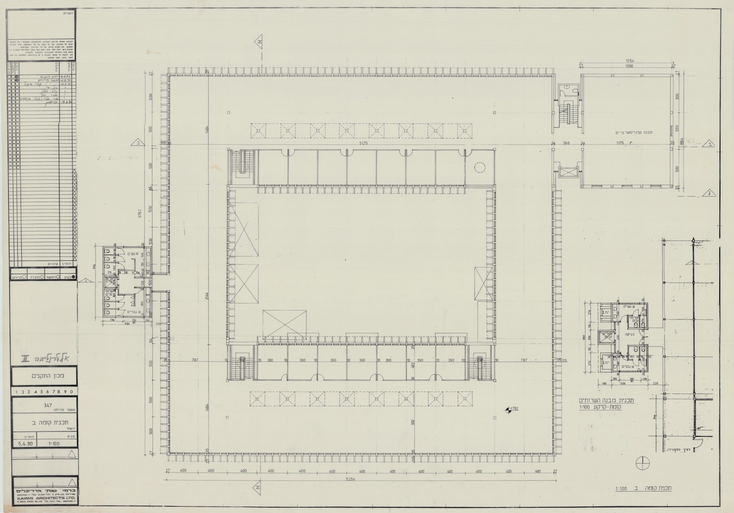
מכון התקנים, תל-אביב-יפו

תל-אביב-יפו

1955-1961

בשיתוף עם צבי מלצר ורם כרמי.

התחברות משתמשים רשומים

הרשמה לאתר ארכיון עזריאלי לאדריכלות